Az értékesítő:
Bálint Krisztián
+36 30 213 5102

Eladó családi ház Szeged, 119 000 000 Ft, 111 négyzetméter

119 000 000 Ft
családi ház, 111 négyzetméter
Építőanyag:
Tégla
Egész szobák:
5
Komfort fokozat:
Összkomfort
Ingatlan állapota:
Kitűnő
Azonosító:
11595299
Értékesítés típusa:
eladó
Ingatlan típusa:
családi ház
Jelleg:
Családi ház
Település:
Szeged
Alapterület:
111
Telekterület:
502
Ár:
119 000 000 Ft
Kor:
Új építésű
Telekterület típusa:
négyzetméter
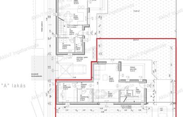
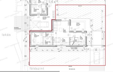
egyen a szomszédom! – Új építésű családi ház akár nagyobb családnak is, a Liliom lakókertben 13 éve élek a családommal a Liliom Lakókertben. Nem térképről és nem prospektusból ismerem a környéket – hanem a mindennapokból. Ha szeretné, szívesen elmondom, milyen itt élni. A Liliom Lakópark egyik legjobban megközelíthető részén, egy 502 m²-es saroktelken épül ez az új, kétszintes családi ház. A telken 2 ház épül, mindkettő külön bejárattal, és saját udvarhasználattal rendelkezik. Az ingatlan főbb adatai: - 111,3 m² hasznos alapterület - földszint: nappali–konyha–étkező, hálószoba, fürdőszoba, háztartási helyiség - emelet: 3 hálószoba, igény szerint: 2 fürdőszoba, vagy 1 fürdőszoba + gardrób / tároló - önálló ház, nincs közös fal - külön bejárat, udvari autóbeállási lehetőség - saját kert Ez a ház ideális: - nagyobb családnak, - otthoni munkavégzéshez, - vagy annak, aki előre gondolkodik, és szereti a variálható tereket. A környék teljesen beépült, rendezett, a BYD autógyár közelsége pedig hosszú távon is értéktartóvá teszi az ingatlant. A három egymás melletti telken összesen 6 új ház épül, ezek közül 3 már elkelt. Ha saját elképzeléseit szeretné megvalósítani, a szomszédos üres építési telek is elérhető, erről is szívesen adok további információt. Ha kérdése van, vagy személyesen is megnézné a helyszínt, hívjon bizalommal.
https://ingatlanok.hu/elado/haz/szeged/119-millio-ft;111-negyzetmeter;5-szoba;nincs-megadva-futes/11595299